当前位置: 首页 > 产品大全 > 某大酒店“名世会”装饰工程设计施工一体化方案

某大酒店“名世会”装饰工程设计施工一体化方案

某大酒店“名世会”装饰工程设计施工一体化方案

某大酒店“名世会”装饰工程秉承高端、专业的设计理念,通过CAD技术实现从概念设计到施工落地的全流程精细化管控。本工程涵盖装饰装修的设计与施工两大核心环节,旨在打造兼具美学价值与实用功能的星级酒店空间。

一、设计阶段:CAD技术赋能精准设计

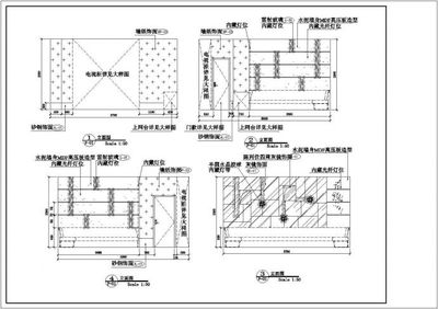
采用CAD软件完成全套施工设计图纸,包括平面布置图、立面图、剖面图及节点大样图。设计充分考虑空间动线、功能分区与装饰风格统一性,对天花造型、墙面饰面、地面铺装及照明系统进行模块化设计。通过三维建模与渲染技术,提前可视化呈现石材拼花、金属构件与软装陈设的最终效果。

二、施工实施:标准化工艺保障工程品质

1. 基层处理:严格按CAD图纸进行墙体定位放线,采用轻钢龙骨隔墙系统,预留设备检修口与管线通道。

2. 装饰面层施工:依据节点大样图完成石材干挂、木饰面安装及艺术涂料喷涂,重点控制接缝处理与色彩过渡。

3. 定制化构件安装:基于CAD深化设计的金属格栅、灯带槽道等异形构件,采用BIM技术进行碰撞检测,确保精准安装。

三、质量控制体系

建立设计图纸会审制度,施工过程中严格执行“三检制”,运用全站仪等设备核对现场尺寸与CAD图纸的吻合度。对天然石材、环保涂料等主材实行批次抽检,确保符合防火等级与环保标准。

本工程通过CAD技术与施工管理的深度融合,实现了设计创意与工程落地的无缝衔接,为高端酒店装饰项目提供了可复制的标准化范例。

如若转载,请注明出处:http://www.yyfszs.com/product/844.html

更新时间:2025-10-16 14:33:56

产品列表

PRODUCT